Ein Zuhause mit Seele: Historische Hofreite im alten Ortskern von Pfaffenwiesbach – bis zu 60.000 € Zuschuss & steuerliche Vorteile (Förderprogramm bis 2029)

Hofreite
Willkommen im Haupthaus
Wohnzimmer Haupthaus
Küche Haupthaus
Wohnküche Haupthaus
Liebevolle Details
Treppenaufstieg Haupthaus
Wohnzimmer alte Scheune
Leseecke Wohnzimmer alte Scheune
Wohnzimmer alte ScheuneFoto 09.11.23, 19 14 57
Bad 1 alte Scheune
Schlafzimmer alte Scheune
Wohnküche alte Scheune
Wohnküche alte Scheune
Bad 2 alte Scheune
Treppenaufgang Alte Scheune
Innenhof
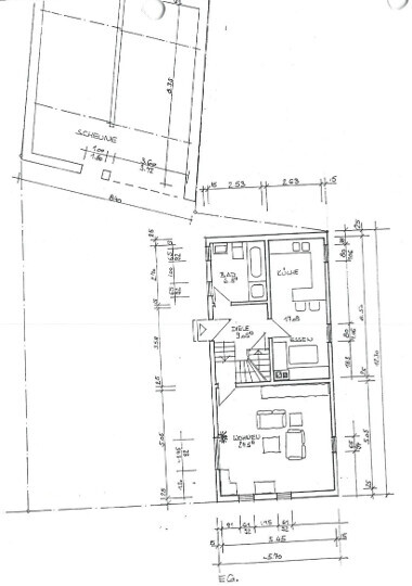
Haupthaus EG
Objektart
Haus
Objekttyp
besondere Immobilie
Vermarktungsart
Kauf
PLZ
61273
Ort
Wehrheim / Pfaffenwiesbach
ImmoNr
SLC-107-25
Wohnfläche
ca. 187 m²
Grundstücksgröße
ca. 279 m²
Anzahl Zimmer
5
Anzahl Badezimmer
2
Kaufpreis
339.000,00 €
Baujahr
1750
Energieausweis
es besteht keine Pflicht!
Außen-Provision
3,57% inkl. MWSt.

Beschreibung

Diese sympathisch-historische Hofreite, erbaut um ca. 1750, befindet sich in zentraler Ortslage von Wehrheim-Pfaffenwiesbach und stellt ein seltenes, authentisches Ensemble mit viel Charakter und Entwicklungspotenzial dar. Die Liegenschaft steht unter Denkmalschutz (das Hauptgebäude ist eingetragen als Kulturdenkmal aus künstlerischen Gründen) und verbindet historische Bausubstanz mit bereits erfolgten Modernisierungen.

Das Gesamtgrundstück umfasst ca. 279 m². Die Hofreite wurde um das Jahr 1995 vollständig erneuert, umgebaut und erweitert. Das Ensemble besteht seitdem aus einem Hauptgebäude mit ca. 109 m² Wohnfläche sowie einem direkt angebauten Nebengebäude mit ca. 78 m² Wohnfläche (ehemalige Scheune). Beide Gebäudeteile sind baulich miteinander verbunden, verfügen jedoch über jeweils eigene, getrennte Eingangsbereiche. Eine innere Verbindung zwischen den Wohnflächen besteht nicht, sodass die Einheiten funktional getrennt nutzbar sind.

Ein gemeinschaftlicher, teilweise begrünter Innenhof bildet das Zentrum der Hofanlage und dient sowohl als Aufenthaltsfläche als auch zum Parken. Zur Liegenschaft gehören ein Garagenstellplatz in der alten Scheune sowie zwei Außenstellplätze im Innenhof – ein besonderer Mehrwert in historischer Ortskernlage.

Das Hauptgebäude verfügt über zwei Vollgeschosse, ist teilunterkellert und besitzt ein derzeit nur teilweise ausgebautes Dachgeschoss, das weiteres Ausbaupotenzial bietet. Zusätzlich existiert ein sogenanntes „verstecktes Zimmer“, das im Zuge einer Sanierung zu zusätzlichem Wohnraum entwickelt werden kann. Die Raumhöhen sind – für ein historisches Gebäude typisch – etwas niedriger und unterstreichen den ursprünglichen Charakter der Immobilie. Eine moderne und mit hochwertigen Geräten (Miele) ausgestattete Einbauküche gewährleistet eine ansprechende Wohnatmosphäre.

Das alte Scheune ist dreigeschossig ausgeführt. Im Erdgeschoss befinden sich die Garage sowie ein großzügiger Abstell- bzw. Eingangsbereich. Die Wohnräume liegen oberhalb der Garage und wurden im Jahr 2021 umfassend renoviert, sodass sich dieser Gebäudeteil in einem sehr gepflegten Zustand präsentiert. Eine bestehende Wohneinbauküche rundet den wohnlichen Charakter ab.

Beide Gebäude werden über eine gemeinsame zentrale Ölheizung im Hauptgebäude beheizt.

Die Immobilie wird nach Kauf entmietet und geräumt übergeben – ideal sowohl für Eigennutzer als auch für Kapitalanleger oder Liebhaber historischer Bausubstanz mit individuellem Nutzungskonzept.

Bei dem Anwesen handelt es sich um ein offiziell anerkanntes Kulturdenkmal gemäß § 2 Abs. 1 Hessisches Denkmalschutzgesetz (HDSchG). Das historische Hauptgebäude steht als Einzelkulturdenkmäler unter besonderem Schutz; zusätzlich besteht Ensemble- und Umgebungsschutz. Dadurch bleibt der besondere architektonische und kulturelle Charakter der Liegenschaft langfristig gesichert. Modernisierungen, Sanierungen und Umbaumaßnahmen sind grundsätzlich möglich, bedürfen jedoch einer denkmalrechtlichen Abstimmung mit der zuständigen Behörde. Der Denkmalstatus eröffnet potenziell attraktive steuerliche Vorteile sowie Zugang zu Fördermöglichkeiten für Sanierungsmaßnahmen. Für Käufer bietet sich somit die seltene Gelegenheit, historisches Flair, langfristige Wertstabilität und individuelle Entwicklungsperspektiven miteinander zu verbinden.

Aufgrund des Denkmalschutzes ist kein Energieausweis erforderlich.

Für das Objekt können im Rahmen der Dorf- und Regionalentwicklung Hessen Zuschüsse von bis zu 35 % (max. 60.000 € bei Kulturdenkmälern) in Anspruch genommen werden. Die Förderung ist derzeit bis 01.04.2029 möglich und kann die Investitionskosten deutlich reduzieren.

Der Angebotspreis trägt dem Sanierungsbedarf des Hauptgebäudes bereits Rechnung und eröffnet Käufern somit zusätzlichen Gestaltungsspielraum bei der individuellen Umsetzung.

Lage

Pfaffenwiesbach ist ein historisch gewachsener und landschaftlich attraktiver Ortsteil der Gemeinde Wehrheim im hessischen Hochtaunuskreis. Der Ort liegt im südlichen Hintertaunus und verbindet ländlichen Charme mit hoher Wohn- und Lebensqualität. Die dörflich geprägte Struktur, die gewachsene Ortsmitte sowie die naturnahe Umgebung schaffen ein ruhiges und zugleich lebenswertes Wohnumfeld.

Pfaffenwiesbach zählt rund 1.600 Einwohner und ist Teil der Gemeinde Wehrheim mit insgesamt knapp 9.700 Einwohnern. Die überschaubare Größe des Ortes sorgt für eine persönliche, familiäre Atmosphäre und ein intaktes nachbarschaftliches Umfeld.

Infrastruktur & Nahversorgung:
Im Ort selbst stehen kleinere Versorgungsangebote wie Bäckerei und Metzgerei zur Verfügung. Für den täglichen Bedarf sowie für weiterführende Einkäufe, Dienstleistungen, Ärzte, Gastronomie und Schulen bieten die nahegelegenen Zentren Wehrheim, Usingen und Neu-Anspach ein umfassendes Angebot mit Supermärkten, Fachgeschäften und Dienstleistungsbetrieben.

Verkehrsanbindung & Mobilität:
Pfaffenwiesbach ist über regionale Buslinien gut an den Bahnhof Wehrheim angebunden. Von dort besteht Anschluss an die Taunusbahn (RMV-Linie RB15) in Richtung Bad Homburg vor der Höhe. Über Bad Homburg bestehen regelmäßige und komfortable Weiterverbindungen mit S-Bahn- und Regionalzügen in das gesamte Rhein-Main-Gebiet. Vom Bahnhof in Wehrheim ist der Frankfurter Hauptbahnhof mit öffentlichen Verkehrsmitteln in ca. 45 Minuten erreichbar. Damit ist Frankfurt am Main auch für Berufspendler gut erreichbar.

Auch mit dem Pkw ist die Region hervorragend angebunden. Die Autobahnen A5 (Anschluss Friedberg / Friedrichsdorf) sowie A661 sind in kurzer Fahrzeit erreichbar und ermöglichen eine zügige Verbindung in Richtung Frankfurt, Bad Homburg, Friedberg und das gesamte Rhein-Main-Gebiet.


Freizeit, Natur & Erholung:
Die Lage am Rand des Taunus bietet vielfältige Möglichkeiten für Freizeit und Erholung. Zahlreiche Wander- und Radwege, Natur- und Landschaftsschutzgebiete sowie Aussichtspunkte prägen die Umgebung. Ergänzt wird das Angebot durch Sport- und Vereinsaktivitäten in Wehrheim sowie attraktive Ausflugsziele wie den Freizeitpark Lochmühle oder die historische Saalburg.

Fazit:
Wehrheim-Pfaffenwiesbach vereint naturnahes Wohnen, ländliche Ruhe und eine gute infrastrukturelle Anbindung. Die Lage eignet sich ideal für Familien, Paare und Pendler, die Wert auf Lebensqualität, Natur und dennoch eine gute Erreichbarkeit der Metropolregion Frankfurt am Main legen.

Ausstattung

Hauptgebäude (ca. 109 m² Wohnfläche)
• Direkt angebaut an die alte Scheune, jedoch eigener Eingangsbereich
• Keine innere Verbindung zum Nebengebäude
• Zwei Vollgeschosse, teilunterkellert
• Dachgeschoss teilweise ausgebaut, weiteres Ausbaupotenzial vorhanden
• Zusätzliches ausbaufähiges „verstecktes Zimmer“
• Einbau einer neuen Küche 2020 mit hochwertigen Küchengeräten (Miele)
• Parkettfußboden im Wohnzimmer
• Steinfußboden im Eingangsbereich
• Einbau eines Kamins ist möglich
• Historisch typische, etwas niedrigere Deckenhöhen
• Elektrik 2021 bis 2024 erneuert
• Zentrale Ölheizung (gemeinsam für beide Gebäude)
• Heizkessel erneuert 2003, regelmäßig gewartet
• Öltanks erneuert 2023
• Zustand: modernisierungsfähig mit Erweiterungspotenzial

Alte Scheune (ca. 78 m² Wohnfläche)
• Direkt angebaut an das Hauptgebäude
• Eigener separater Eingang, keine innere Verbindung zum Haupthaus
• Dreigeschossige Bauweise
• Erdgeschoss mit Garage und großem Abstell-/Eingangsbereich
• Wohnräume oberhalb der Garage
• Vollständig renoviert 2021
• wohnliche Einbauküche
• Steinfußboden
• Zwei Bäder, davon eines innenliegend
• Elektrik 2021 bis 2024 erneuert
• Beheizung über die zentrale Ölheizung des Hauptgebäudes
• Zustand: sehr gepflegt und bezugsbereit

Die historischen Hauptgebäude stehen als Einzelkulturdenkmäler unter besonderem Schutz; zusätzlich besteht Ensemble- und Umgebungsschutz.

Außenbereich & Stellplätze
• Gemeinsamer Innenhof, teilweise begrünt
• Nutzung als Aufenthaltsfläche und Parkfläche
• 1 Garagenstellplatz
• 2 Außenstellplätze im Innenhof

Wir konnten das Baujahr durch Einsicht in die Bauunterlagen nicht hinreichend bestimmen.

Die Wohnflächenangaben des Eigentümers haben wir nicht durch ein eigenes Wohnflächenaufmaß/Wohnflächenberechnung kontrolliert.

Sonstige Angaben

Allgemeiner Hinweise:
Sattler Living Consulting ist vom Eigentümer beauftragt, die Immobilie zu veräußern. Das vorliegende Exposé soll dazu dienen, Ihnen eine Übersicht über die wesentlichen Rahmendaten des Objektes zu geben. Weitere Objektunterlagen wie Grundrisspläne, Grundbuchauszug, Mietverträge etc. können wir Ihnen – sofern vorhanden - kurzfristig zur Verfügung stellen.

Die in diesem Angebot enthaltenen Angaben, Abmessungen und Preisangaben beruhen auf Angaben des Eigentümers (oder eines Dritten). Bei aller Sorgfalt können wir eine Haftung für deren Richtigkeit und Vollständigkeit nicht übernehmen. Ebenso wenig können wir eine anderweitige Veräußerung ausschließen.

Wir konnten das Baujahr durch Einsicht in die Bauunterlagen nicht hinreichend bestimmen.

Die Wohnflächenangaben des Eigentümers haben wir nicht durch ein eigenes Wohnflächenaufmaß/Wohnflächenberechnung kontrolliert.

Provisionshinweis:
Mit der Anfrage bei uns und durch Inanspruchnahme der Dienstleistung unserer Firma wird ein Maklervertrag geschlossen. Sollte durch unsere Nachweis- oder Vermittlungstätigkeit ein notarieller Kaufvertrag zustande kommen, ist vom Käufer eine Käufer-Provision in Höhe von 3,57 % (inkl. 19% MwSt.) des Kaufpreises uns zu zahlen. Die Provision ist mit notariellem Vertragsabschluss verdient und fällig. Dieses Exposé ist eine Vorinformation, als Rechtsgrundlage gilt allein der notariell abgeschlossene Kaufvertrag.

Datenschutzerklärung:
Wir verweisen auf die Datenschutzerklärung auf unserer Webpage, die Sie unter https://sattlerconsulting.de/rechtliche-hinweise/#datenschutzerklaerung abrufen können.

Ansprechpartner

Herr Heiko Sattler

Lilienweg 19
61381 Friedrichsdorf

Telefon1

01711856951

mobile

01711856951

Email

anfragen@sattlerconsulting-anfragen.de

Deine Anfrage zu der Immobilie „Ein Zuhause mit Seele: Historische Hofreite im alten Ortskern von Pfaffenwiesbach – bis zu 60.000 € Zuschuss & steuerliche Vorteile (Förderprogramm bis 2029)“ (SLC-107-25)

Professionalität, Herzlichkeit und Verbindlichkeit – das sind nur einige der Eigenschaften, die uns ausmachen. Vertrauen Sie uns als zuverlässigen Immobilienmakler mit erstklassiger Beratung.